Ashtons Butchery And Abattoirs, Pittsworth QLD 4356
For Sale Offers Above $4,750,000. Total Business & Freehold

Award Winning Darling Downs Family Business
With two popular retail outlets located in Pittsworth and Dalby + a recently upgraded abattoir in Millmerran, this exceptional business opportunity on offer is backed by a robust and successful family legacy.
Ashton's Butchery, Pittsworth -
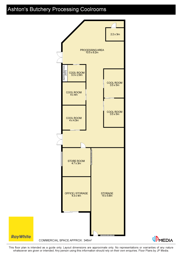
Freehold Retail Outlet: 66 Yandilla Street, Pittsworth
RPD & Area: Lot 3 on RP12960 = 359m2*
Construction: Concrete floor, part double brick walls and part tilt up reinforced concrete wall and iron roof. Includes retail area, 3 x cold rooms, breakup area, office, 2 x storerooms and amenities area.
Work Area/Boning Room, Pittsworth -
Freehold Ham and bacon room off Evans Street, Pittsworth adjoining Council car park.
RPD & Areas:
Lot 1 on RP138893 = 110m2*
Lots 1, 2 & 3 on RP152078 = 313m2*
Total area = 423m2*
Construction: Concrete floor, besser block walls and corrugated iron roof. Includes ham and bacon area, 3 x cold rooms, 2 x walk-in freezers, storeroom and staff amenity area and 65kVA generator.
A new addition to the existing structure is the 5mx8m Boning Room cold room panelling that can be switched to full cold room, new concrete floor, new lighting and overhead rails. Extra cold room space approx. 60 square meters with rail system with sliding door and rail load out area. Total of an extra 100 square metres of cold room capacity.
Ashton's Butchery, Dalby -
Retail outlet located in Dalby Shoppingworld in a prominent location near the entrance into Woolworths. Shops 6 & 7 includes extensive retail display area, work area and 2 x cold rooms (Lease details available to prospective buyers)
Millmerran Abattoirs -
Freehold Property: 321 Inglewood Millmerran Road, Millmerran
RPD & Area: Lot 27 on SP125631 = 12.6ha*
Construction: Covered cattle and small stock area approx. area 672m2, new steel yards, small stock area that has grated flooring with manual washout, unloading ramps, new steel framed shed approx. area 180m2, covering cold rooms and load out area, 125kVA diesel powered backup generator, slaughter area approx. 150m2, small cold rooms, hydraulic knocking box, hydraulic lift rail to new cold room area, new chiller capacity 40/50 bodies, older chiller capacity 25/30 bodies, 2 x additional small cold rooms, 250,000L iron tank, 45,000L in 2 x poly tanks with pressure pumps, 2 x 20' and 1 x 40' shipping containers, open skillion shed approx. 165m2, boxed steel uprights, concrete footings, web steel trusses and Zincalum skillion roof.
The owners have recently upgraded the wastewater by inserting a water filtration unit. In addition, the owners are currently installing a poly settling tank with auto pump & irrigation system.
Current weekly kill numbers: 30/40 cattle, 100/110 lambs & sheep, 60 pigs and 5 goats.
Note: With the recent upgrade to the facility, the owners feel these numbers could be increased.
Transport -
The Hino Ranger truck transports beef and small animals back to the Pittsworth shop where it is broken up and then transports the broken beef, small animals and small goods to Dalby.
The truck is also used to do delivery to butchers in Moree, Goondiwindi, Inglewood and Texas (this part of the business could be expanded)
The delivery van does shop deliveries to Wyreema, Westbrook, Toowoomba and Leyburn.
Business Details -
Staff: The current staffing levels of the various businesses are as follows, including some family members working in the business:
Pittsworth - 15
Dalby - 4/5
Millmerran - 6
This 'Paddock to Plate' wholesale business opportunity is located in the heart of the Downs' feedlots and the growing area of southeast Queensland. It is well placed and supported to take to the next level.
Price - Offers above $4,750,000. Sale includes full business operation and freehold property in Pittsworth and Millmerran.
Note: Stock at valuation at time of settlement.
For more information contact Matt Cleary on 0428 987 340 or matt.cleary@raywhite.com
* = approximately
Our partners are with you every step of the way.
Email a friend
You must be logged in and have a verified email address to use this feature.
Call Agent
-
Matt ClearyRay White Rural Toowoomba





























