775 Lockwood Road Beechina WA 6556
Sold $995,000

"Beechina Beauty"
Immaculately presented, this stunning 5.5 acre property is located an easy 15 minute drive to the Mundaring town centre and 45 minutes to the Perth Airport. Boasting a substantial yet charming character circa 1930 farmhouse, a separate studio, parkland cleared land and excellent equine facilities, it would be ideal for the astute buyer seeking an escape from the hustle and bustle of suburbia or the horse lover. Move-in ready, all the hard work has been done here so that you can just move in and enjoy the lifestyle on offer.
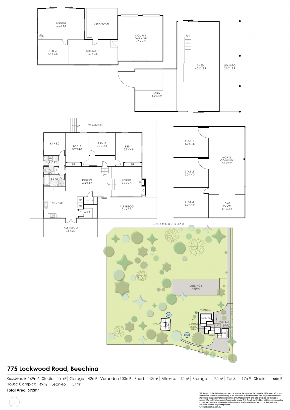
4 bedroom and 1 bathroom residence
Separate studio with living & bedroom
Spacious open plan kitchen & dining
Sunken lounge with feature fireplace
Country kitchen with 900mm cooker
Ducted r/cycle air con and ceiling fans
Insulated Stable complex with pwr/water
3 wiwo stables, feed and tack room
Full size arena, tanks and winter soak
Shed with mezzanine & mechanic pit
Parkland cleared with large paddocks
Easy access to bridle trail and reserves
5.5 acres only 15 mins drive to Mundaring
Solar powered gates secure the entrance to the property and the homestead is framed by a large expanse of lawn and established trees. Wide verandahs with gorgeous feature rock retaining walls wrap the home and would be the perfect spot to relax and observe the equine action on the 60m x 20m arena.
Originally built circa 1930, the homestead has all of the modern comforts one could expect whilst retaining much of the delightful character of the era. The main living zone of the home comprises a large open plan dining area with an adjoining sunken lounge room and huge country-style kitchen. Double french timber doors from this space flow to the outdoors and beautiful feature timber windows flood the entire home with natural light. The lounge room boasts a feature original stone fireplace with inbuild wood servery and is delightfully cosy. The kitchen is similarly charming with timber cabinetry, an imported large solid island bench, dishwasher, 900mm gas range cooker and spacious walk in pantry. The entire home is kept comfortable all year round courtesy of ducted reverse cycle air conditioning.
The accommodation in the home is split into two wings. The first wing boasts three large bedrooms, two of which have built in robes. The fourth bedroom, or study, is located in the second wing which also houses a family bathroom with separate toilet and a spacious laundry. All of the bedrooms have ceiling fans and large windows which provide lovely natural light.
Wander outside to find a spacious studio which adjoins the double garage. Ideal for ancillary accommodation it would also be perfect for those running a business from home. It comprises two large rooms and an adjacent storage room and is complete with ceiling fans and a slow combustion wood fire.
Set away from the home is a large shed with concrete floor and power. The drive-through shed has an adjoining annex for machinery parking, a mezzanine floor and a powered mechanics pit. The stable complex is similarly well-equipped. It has rubber mat flooring, is insulated and has solar lights and a feed and tack room and is complete with a large tie up wash bay area. The three walk in/walk out stables adjoin a large parkland cleared paddock and the equine lover will love the easy access to bridle trails and Reserve which are within close proximity of the property.
Simply stunning, this property is unique and is sure to be in high demand. With a host of other extras including 2 large water tanks, a winter soak and fantastic equine facilities, you will need to be quick to be the next lucky owner of this "Beechina Beauty".
For more information or to arrange to view please contact
KERRIE-LEE MARRAPODI - 0415 472 838
Disclaimer:
This information is provided for general information purposes only and is based on information provided by the Seller and may be subject to change. No warranty or representation is made as to its accuracy and interested parties should place no reliance on it and should make their own independent enquiries.
Property Features
- Water Tank
- Workshop
- Shed
- Secure Parking
- Open Fireplace
- Fully Fenced
- Dishwasher
- Built In Wardrobes
- Broadband
- Air Conditioning
Our partners are with you every step of the way.
Email a friend
You must be logged in and have a verified email address to use this feature.
Call Agent
-
Kerrie-lee MarrapodiThe Agency Perth



























