Four Mile, 4437 Southern Ports Highway, Robe SA 5276
For Sale EXPRESSIONS OF INTEREST

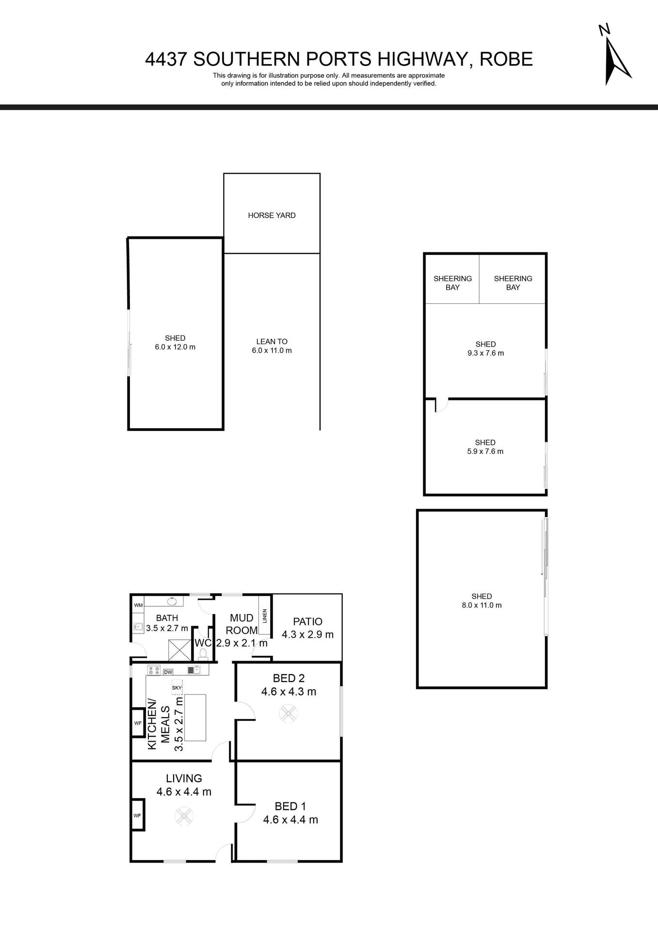
Versatile Lifestyle Property with Multiple Income Streams
EXPRESSIONS OF INTEREST - Closing 11am Thursday 7th May 2026
56.3 hectares/ 139.11 acres
Located just 6km* from the township of Robe, Four Mile presents a unique opportunity to secure a picturesque and productive rural holding. Set on 139.11 acres* of gently undulating land, the property combines lifestyle appeal with established income potential.
THE COTTAGE
A charming, renovated two-bedroom paddock stone cottage, rich in character and set amongst established gum trees.
Wood combustion heating in the lounge room opening onto the kitchen, renovated in recent years with gas cooking facilities.
Modern bathroom and laundry, the cottage has been well-kept and maintained over the decades. Perfect holiday rental home on a rural setting.
Brand new neighbourhood fence at the rear of the cottage which is pet and child friendly and secure
Furniture with main dwelling may be negotiated if required
THE LAND
Excellent fencing predominately plain wire + some hot wires
New gates and solid reliable stock water system
Extremely strong soil type on the flats with rising country
Suitable for livestock grazing hay or horses
Multiple stock yard facilities
Various galvanised iron sheds with 2 stand shearing shed with in one of the sheds shed
Concreted in 2.5 sheds - lean too for hay storage next to stock yards facilities, horse yards next to fruit orchid
Two water licences included in the sale totalling 135,400 kL of taking allocation.
SHORT TERM ACCOMMODATION
The property benefits from high exposure along the main road and an established short-stay accommodation business.
- The Vendor offers short term stays with campers via website Hipcamp
- Site office - shed office - 2x40 foot containers
- 2x 1 bedroom transportable and a toilet block, on mains power and water supplied via equipped bore
For more information or to arrange a private inspection, please contact Grant Schubert on 0429 077 033 or grant.schubert@elders.com.au
Our partners are with you every step of the way.
Email a friend
You must be logged in and have a verified email address to use this feature.
Call Agent
-
Grant SchubertElders Real Estate South East





























