26 Mumbeanna Court, Pie Creek QLD 4570
For Sale Offers over $1,375,000
Under Offer
Luxury Australian Barn Home with Pool & Rural Outlook
From the moment you arrive, it’s clear this is no ordinary home. As you drive onto the expansive 4,619m² allotment, a sense of calm and quality immediately sets in. Make your way toward the striking custom made timber front door and you begin to understand that this Australian Barn House has been crafted to a standard rarely seen in the Gympie Region.
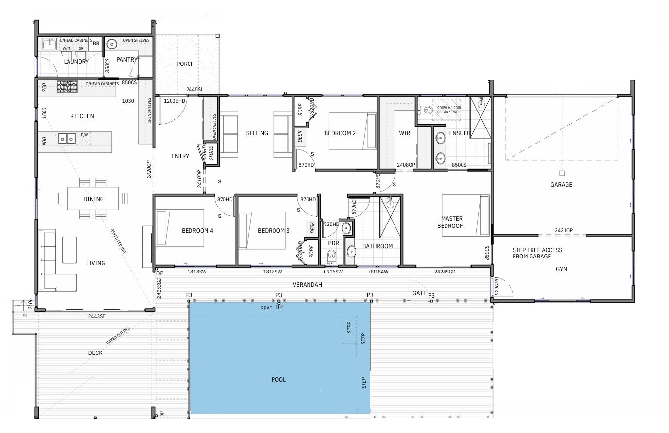
Designed for both luxury and liveability, the home features 2.7 metre ceilings throughout, polished white concrete floors and a 7-star energy rating. Premium LED lighting is installed throughout, complemented by illuminated light switches that softly glow at night for added convenience and ambience. A powerful 16 kilowatt ducted air conditioning system ensures year round comfort, while the main living area is elevated by stunning raked ceilings lined with New Guinea Rosewood, creating warmth, character and architectural impact.
The heart of the home is the expansive open plan kitchen, dining and living zone. The kitchen is a statement in both style and functionality, boasting 40mm engineered stone benchtops, soft close cabinetry, a fluted farmhouse sink, premium AEG appliances, induction cooktop and rangehood, double ovens and a fully appointed butler’s pantry. Antique brass handles and tapware throughout the home add a refined, timeless elegance that perfectly complements the barn-style aesthetic.
A separate sitting room enjoys tranquil views across the beautifully landscaped front yard, centred around a sandstone edged circular garden that enhances charm and street appeal.
Accommodation is generous and thoughtfully designed. The master suite is a true retreat, featuring tiles to the ceiling in the ensuite, double vanity basins, a walk-in wardrobe, an adjoining gym, and direct access to both the pool and garage. Three of the four bedrooms overlook the stunning pool area, while all bedrooms include built-in wardrobes with shelving, hanging space and mirrored doors, along with ceiling fans and plush carpet.
The main bathroom is equally impressive, finished with floor to ceiling tiles, a large shower and a custom-made Gympie Messmate vanity - another nod to quality craftsmanship and local character.
Step outside and discover a private oasis. The impressive 50,000 litre magnesium edge pool is finished with white pebble Crete, travertine surrounds and 150mm waterline tiles. A hardwood deck overlooks both the pool and the dam beyond, home to a family of wild ducks and framed by a peaceful rural outlook - an idyllic setting for relaxation or entertaining.
Additional features include:
• Oversized remote controlled garage
• New Guinea Rosewood external cladding
• Fully concreted driveway
• Zincalume downpipes
• Space allocated for a shed (up to 12.5 x 9.5 metres)
• Sandstone Garden edging
• Low maintenance, drought tolerant landscaping
Positioned in the prestigious enclave of Mumbeanna Court, Pie Creek, this exceptional property offers a rare blend of refined rural living and modern luxury, all within easy reach of Gympie.
For more information or to arrange a private inspection, contact
Sales Consultant Desley Aylward on 0428 769 166.
Information in this advertisement comes from sources we believe to be accurate, but its accuracy is not guaranteed. Interested parties should make and rely on their own enquiries.
Property Features
- Built In Wardrobes
- Deck
- Ducted Cooling
- Ducted Heating
- Gym
- In Ground Pool
- Outdoor Entertaining Area
- Remote Controlled Garage Door
- Water Tank
Our partners are with you every step of the way.
Email a friend
You must be logged in and have a verified email address to use this feature.
Call Agent
-
Desley AylwardNashville Property Group




























