143 Ensbey Road Lower Southgate NSW 2460
For Sale $2,400,000

“A Perfectly Planned Riverfront Farm — Nothing Left to Do”
Positioned perfectly overlooking the majestic Clarence River, this exceptional 29.55-hectare (approx. 73.02-acre) property at 143 Ensbey Road, Lower Southgate delivers the ultimate rural lifestyle — where every detail has been thoughtfully planned, and nothing has been left undone.
Located less than 2 km from the riverside village of Lawrence, and just a short drive to stunning North Coast beaches, such as Yamba, this property offers the best of both worlds: peaceful country living in the heart of cane country, with all the infrastructure and setup of a premium small-scale cattle operation.
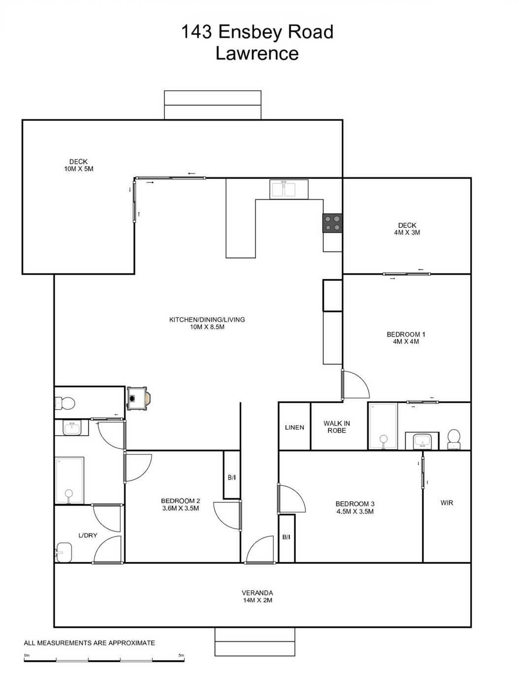
The Home
The elevated home has been thoughtfully renovated while retaining some of its original country features, combining practicality with comfort.
• 3 spacious bedrooms + study
• 2 modern bathrooms
• Open plan living with a cosy gas fireplace
• Timber decking overlooking the river and your very own cricket pitch
• Firepit area — ideal for entertaining
• Neat, established landscaping surrounding the home
Farm Infrastructure
Every aspect of this farm has been set up with efficiency and practicality in mind. The attention to detail throughout is impressive, with a vast array of quality shedding, storage, and livestock facilities.
• Main Shed: 24m x 12m with power, half concrete slab, and lockable sliding doors, complete with a built in 40ft shipping container for extra storage
• Vehicle Shed: 5m x 6m with roller door
• Open Shed: 9m x 7m for small machinery
• Four-Bay Shed: 11m x 6m with power
Across the Road – The farm Compound
The setup continues in the fully established gravel compound — a testament to the property’s complete and functional design.
• Machinery Shed: 20m x 10m
• Hay Shed: 18m x 12m
• Steel Cattle Yards: Purpose-built with flood-resilient design
• Undercover cattle crush with concrete race
• Purpose built undercover feeding facility
Land & Water
A productive and versatile 73.02 acres fronting the Clarence River — fully fenced, well-drained, and ideally suited to beef production or sugar cane.
• Quality pastures
• Laneway system for easy livestock movement
• Multiple paddocks, ideal for rotational grazing
• Central watering system
• Town water connection plus rainwater tanks
The Perfect Combination
Do you want to live the rural life but don’t want to sacrifice your morning latte or afternoon schooner? No problem! Lawrence has you covered — with a local grocer and coffee shop, the ever-popular tavern, and a nearby boat ramp for easy river access, this farm is special!
Whether you’re seeking a turn-key beef operation, a mixed-farming opportunity, or simply an idyllic Clarence River lifestyle property, 143 Ensbey road has it all. With every improvement thoughtfully considered and meticulously maintained, there truly is nothing left to do but move in and enjoy.
To book your inspection,
Mitch Donovan on 0428 470 132.
Sophie Donovan 02 66434411
Lot & DP info: 109 & 110//DP751386
Size: 29.55Ha (73.02 acres) approx.
Disclaimer:
We have in preparing this information used our best endeavours to ensure that the information contained herein is true and accurate. However, we accept no responsibility and disclaim all liability in respect of any errors, omissions, inaccuracies, or misstatements that may occur. Prospective vendors, purchasers & tenants should conduct their own due diligence in order to verify the information contained herein.
Our partners are with you every step of the way.
Email a friend
You must be logged in and have a verified email address to use this feature.
Call Agent
-
Mitch DonovanDonovan Livestock & Property Pty Ltd





























